Description
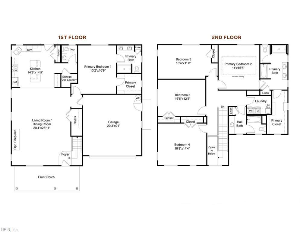
Corner lot ready early 2027, still time to customize. The Hawthorne floor plan offers flexibility & spacious living, making it the largest & most adaptable 2-story home at Crestfield. With an impressive 3,089 square feet, this open-concept home offers 5 bedrooms, including dual owner’s suites & 3.5 baths. The kitchen features quartz countertops, stainless steel appliances, and a generously sized island for seating & casual dining. Both levels boast 9-foot ceilings, enhancing the sense of space & light throughout the home. The front porch invites you to relax & enjoy the neighborhood, & the 2-car garage provides ample storage and parking. Fenced yard with large patio. Buyer must register agent on or before first visit or first substantial communication with listing agent and Agent must accompany Buyer on 1st visit, see Listing Agent for details. Photos & Video are of previously built home for illustrative purposes, finishes & upgrades will vary in home to be built.
-
5BEDS
-
0.25ACRES
-
3BATHS
-
11/2 BATHS
-
3,089SQFT
-
$234$/SQFT
School Information
Description
Corner lot ready early 2027, still time to customize. The Hawthorne floor plan offers flexibility & spacious living, making it the largest & most adaptable 2-story home at Crestfield. With an impressive 3,089 square feet, this open-concept home offers 5 bedrooms, including dual owner’s suites & 3.5 baths. The kitchen features quartz countertops, stainless steel appliances, and a generously sized island for seating & casual dining. Both levels boast 9-foot ceilings, enhancing the sense of space & light throughout the home. The front porch invites you to relax & enjoy the neighborhood, & the 2-car garage provides ample storage and parking. Fenced yard with large patio. Buyer must register agent on or before first visit or first substantial communication with listing agent and Agent must accompany Buyer on 1st visit, see Listing Agent for details. Photos & Video are of previously built home for illustrative purposes, finishes & upgrades will vary in home to be built.
